
本施設は、西中学校の体育館(昭和44年建築)、武道場(昭和56年建築)及び西公民館(昭和48年建築)の老朽化に伴い、学校は災害時の避難所となるなど、地域の拠点として重要な施設であることから、体育館に公民館の生涯学習機能や地域防災機能を備え、複合施設として整備したものです。
施設の概要
所在地
秦野市柳町二丁目5番1号
構造
鉄筋コンクリート造・一部鉄骨造
面積
| 施設 | 面積(平方メートル) |
|---|---|
| 体育館 | 2341.51 |
| 公民館 | 991.04 |
| 防災備蓄倉庫 | 140.86 |
| 延べ面積 | 3,473.41 |
施設内容
| 体育館 |
|
|---|---|
| 公民館 |
|
| 防災備蓄倉庫 | 防災備蓄倉庫 |
建設費
1,203344893円
施工事業者
- 建築工事 関野 建設・稲元興業共同企業体
- 電気設備工事 小中・アルグローブ共同企業体
- 機械設備工事 オリエンタル・みどりや共同企業体
本施設の紹介
複合施設として <学校体育館と公民館の複合化>

老朽化が進んでいた西中学校体育館と西公民館ですが、市内で唯一学校体育館と公民館、地域防災機能の三つが一つになった地域の拠点として生まれ変わりました。
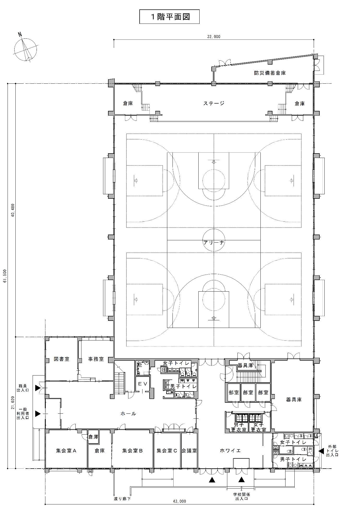
広いアリーナ <バスケットボールコート2面分>

公式バスケットボールコート2面分の同時使用ができる広さです。天井や壁にも秦野産木材を使用し、あたたかみのある空間を演出しています。
多目的に使える集会室 <視聴覚室と会議室>

防音壁と2重サッシ構造を採用し、また音響設備を備え、気兼ねなく音楽活動を楽しめます。長机と椅子を配置すれば、会議室にもなります。
多目的に使える集会室 <調理室と会議室>

調理台を移動式とし、会議室、調理室のどちらでも使用可能としました。ガス栓や水道栓を床下に収納すれば、調理台が移動可能で、調理器具などは隣接する倉庫に収納しています。
広々とした共有空間 <公民館ホール>

共用空間であるホールを広く取り、地域住民のちょっとした交流など、いつでも気軽に利用できます。
防災機能の強化 <防災備蓄倉庫と自家用発電設備>

大規模災害時に避難所となる体育館へ直接、救援物資の搬出入ができます。72時間連続稼働可能な自家用発電機を備え、停電時でもしっかり電源を確保。公民館の空調が使用できるため、高齢者や体調に不安のある方の避難生活も安心です。
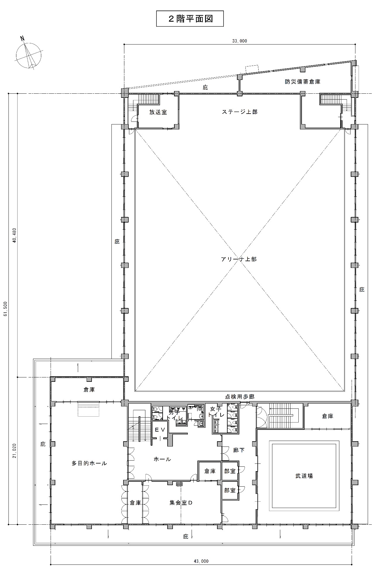
施設の平面図
1階

2階

この記事に関するお問い合わせ先
- このページに関するアンケートにご協力ください
-
メニューを閉じる